Energiezuinige tussenwoning uit 2018 met moderne keuken luxe badkamer en zonnige tuin op korte afstand van centrum Naaldwijk
Een instapklare woning met luxe afwerking én heerlijke tuin.
Ben je op zoek naar een energiezuinige en uitstekend onderhouden tussenwoning in een kindvriendelijke woonwijk van Naaldwijk? Dan is Chrysantenstraat 7 precies wat je zoekt. Deze…
Naaldwijk Chrysantenstraat 7 € 550.000 k.k.


Kevin Dekkers
360 foto

Omschrijving
Een instapklare woning met luxe afwerking én heerlijke tuin. Ben je op zoek naar een energiezuinige en uitstekend onderhouden tussenwoning in een kindvriendelijke woonwijk van Naaldwijk? Dan is Chrysantenstraat 7 precies wat je zoekt. Deze sfeervolle woning uit 2018 beschikt over drie slaapkamers, 4 zonnepanelen, een stijlvolle…
Een instapklare woning met luxe afwerking én heerlijke tuin.
Ben je op zoek naar een energiezuinige en uitstekend onderhouden tussenwoning in een kindvriendelijke woonwijk van Naaldwijk? Dan is Chrysantenstraat 7 precies wat je zoekt. Deze sfeervolle woning uit 2018 beschikt over drie slaapkamers, 4 zonnepanelen, een stijlvolle afwerking, airconditioning in de hoofdslaapkamer én een onderhoudsvriendelijke achtertuin met volop privacy. Een fijne gezinswoning waar je zo in kunt trekken!
INDELING
Begane grond
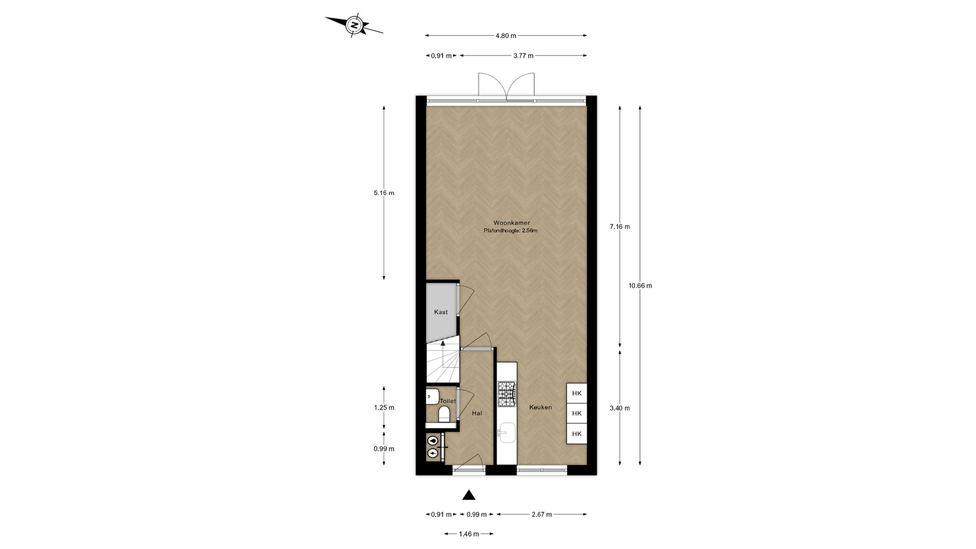
Via de nette, bestrate voortuin kom je binnen in de hal met garderobe, meterkast, trapopgang en een moderne toiletruimte voorzien van wandtoilet en fonteintje.
De lichte en strak afgewerkte woonkamer is een fijne plek om thuis te komen. De brede raampartij met openslaande deuren naar de tuin zorgt voor veel natuurlijk licht. De ruimte is stijlvol ingericht met een zandkleurige plavuizen vloer, inbouwspots, glad gestuukte wanden en plafonds en luxe houten stompe deuren met houten deurposten.
Aan de voorzijde van de woning ligt de luxe open keuken in hoogglans wit. Deze keuken is compleet uitgerust met o.a. een 5-pits gasfornuis, afzuigkap, kokend waterkraan, spoelbak, combi-oven, vaatwasser, koelkast en vriezer. Ideaal voor wie van koken houdt!
Eerste verdieping
De overloop geeft toegang tot twee slaapkamers en de badkamer.
De ruime hoofdslaapkamer aan de achterzijde is een comfortabele en sfeervolle ruimte, compleet met een walk-in-closet, airconditioning, zacht tapijt en grote ramen. Aan de voorzijde bevindt zich de tweede kamer, geschikt als slaap-, kinder- of werkkamer.
De badkamer is stijlvol afgewerkt en voorzien van een ligbad, dubbele wastafel met meubel, inloopdouche met regendouche, glazen wanden en een tweede toilet. De combinatie van grijs-witte tegels en houten accenten geeft de ruimte een warme, moderne uitstraling.
Tweede verdieping
De zolderverdieping is multifunctioneel en momenteel in gebruik als derde slaapkamer. Dankzij het dakraam, de ruime opzet (ca. 23 m²) en een nokhoogte van 3,55 meter is deze verdieping ook zeer geschikt als werkkamer, hobbyruimte of berging. Aansluitingen voor wasmachine en droger zijn hier aanwezig.
BUITENRUIMTE
De achtertuin is gesitueerd op het oosten en volledig betegeld, waardoor je hier nauwelijks onderhoud aan hebt. De tuin is omheind met een houten schutting voor optimale privacy en beschikt over een achterom, een vrijstaande houten berging en een buitenkraan. Een fijne plek om buiten te ontspannen of gezellig te eten in de zon. Ook aan de voorzijde is er een verzorgde tuin aanwezig.
KENMERKEN
•Energielabel A
•4 zonnepanelen
•Modern en luxe afwerkingsniveau
•Ligging nabij het centrum van Naaldwijk
•Oplevering: In overleg, kan snel
VERKOOPCONDITIES
•NVM koopovereenkomst model 2023
•Notariskeuze in overleg
•Onze Verkoopvoorwaarden en privacy verklaring zijn van toepassing
Basiskenmerken
Overdracht
- Status Onder bod
- Vraagprijs € 550.000 k.k.
- Aanvaarding In overleg
Bouwvorm & onderhoud
- Soort object Tussenwoning
- Soort woning Eengezinswoning
- Bouwjaar 2018
- Soort bouw Woonhuis
- Ligging In woonwijk
Oppervlakte & inhoud
- Gebruiksoppervlakte 113 m2
- Perceeloppervlakte 107 m2
- Inhoud 382 m3
- Aantal kamers 4
- Aantal slaapkamers 3
- Aantal badkamers 1
- Badkamervoorzieningen Ligbad, toilet, dubbele wastafel, wastafelmeubel, inloopdouche
- Aantal woonlagen 3 woonlagen
- Externe bergruimte 6 m2
Energie & installatie
- Energielabel A
- Isolatie Volledig geïsoleerd
- Verwarming Cv ketel
- Warm water Cv ketel
- C.v.-ketel type Gas
- C.v.-ketel bouwjaar 2018
- Energie einddatum 2028-09-16
Bergruimte
- Schuur / berging Vrijstaand hout
- Aantal schuren / bergingen 1
- Voorzieningen Voorzien van elektra
Parkeergelegenheid
- Parkeerfaciliteiten Openbaar parkeren
- Garage Geen garage
Dak
- Soort dak Zadeldak
Overig
- Onderhoud binnen Goed tot uitstekend
- Onderhoud buiten Goed tot uitstekend
- Bijzonderheden Gedeeltelijk gestoffeerd
- Permanente bewoning Ja
- Huidig gebruik Woonruimte
- Huidige bestemming Woonruimte
Voorzieningen
- Voorzieningen Mechanische ventilatie, glasvezel kabel, zonnepanelen
Buitenruimte
- Hoofdtuin Achtertuin
- Oppervlakte hoofdtuin 28 m2
- Ligging hoofdtuin Noordoost
- Kwaliteit tuin Verzorgd
Kadastrale gegevens
- Gemeente Naaldwijk
- Sectie D
- Eigendom Volle eigendom
- Perceelnummer 11210
- Perceeloppervlakte 107
Plattegronden
Statistieken
Downloads
Geïnteresseerd