Unieke woonkans bij het Elsenburgerbos!

Beschikbaar

Wonen op een historische plek, midden in het groen en grenzend aan het Elsenburgerbos
Nog een zelf te verbouwen boerderij met 846m2 eigen grond en parkeren op eigen terrein.

Aan de rand van Rijswijk wordt de voormalige evenementen…

Rijswijk Jaagpad 7 C € 1.200.000 k.k.

Bereken je lasten voor deze woning:

Ferry Rodenburg

Omschrijving

Wonen op een historische plek, midden in het groen en grenzend aan het Elsenburgerbos Nog een zelf te verbouwen boerderij met 846m2 eigen grond en parkeren op eigen terrein. Aan de rand van Rijswijk wordt de voormalige evenementen locatie Herberg Vlietzigt getransformeerd tot een exclusief wooncomplex met vijf grondgebonden…

Wonen op een historische plek, midden in het groen en grenzend aan het Elsenburgerbos
Nog een zelf te verbouwen boerderij met 846m2 eigen grond en parkeren op eigen terrein.

Aan de rand van Rijswijk wordt de voormalige evenementen locatie Herberg Vlietzigt getransformeerd tot een exclusief wooncomplex met vijf grondgebonden woningen en een eigen haven. Ondanks de monumentale status is hier veel ruimte voor duurzaamheid. Een chique uitstraling maar met het comfort van nu; wie wil dat nu niet? U heeft nu de kans om één van deze schitterende woningen te bemachtigen. Samen met de aannemer kunt u aan tafel om de woning naadloos te laten aansluiten op uw wensen.

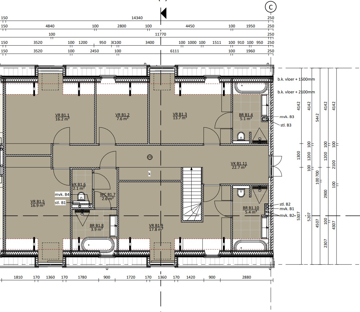
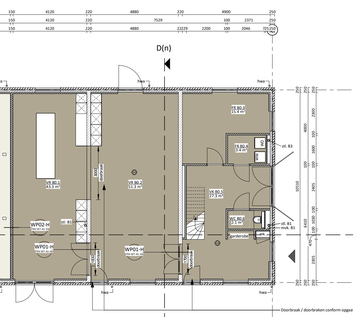
In de voormalige stal wordt een zeer ruim bemeten woning met veel privacy aangeboden. Uiteraard nog naar eigen wensen te realiseren, of gebruik makend van de reeds gemaakte bouwtekeningen. Dan komt u op een woonoppervlakte van ca. 278m2 uit over 2 woonlagen. Met aan driezijden zicht en een ruim perceel.

INDELING
Oprit aan de zijde met mogelijkheid om voor meerdere auto's parkeren op eigen terrein te realiseren.
Entree met hal en toiletruimte. De woonkamer met riante open keuken met de balkenconstructie in het zicht. En biedt tal van indelingsopties om de eetkamer, zitkamer, tv-hoek of bibliotheek te creëren. De riante raampartijen zijn aan drie zijdes van de woning zichtbaar en zorgen voor een aangename sfeer. Wilt u hier liever een tussenwand, inpandige berging of een kantoorruimte aan huis? Dit is zonder meer mogelijk. Wanneer wij naar de eerste etage kijken dan zijn er op de huidige plattegrond vijf slaapkamers en drie badkamers ingetekend. Heeft u liever grotere slaapkamers of een aangrenzende walk-in closet? Dat is geen enkel probleem. De mogelijkheden zijn eindeloos!

Kortom; een unieke kans die zich zelden voor doet. Maak snel een afspraak voor een bezichtiging en laat u verrassen door al het moois wat deze locatie u te bieden heeft.

KENMERKEN;
• Perceeloppervlak ca. 846 m², eigen grond ;
• Gebruiksoppervlak wonen: ca 278 m²;
• Aantal kamers: 6, waarvan 5 slaapkamers en 3 badkamers (indeling kan worden aangepast);
• Eigen oprit voor meerdere auto's te realiseren;
• Parkeergelegenheid in de nabije omgeving;
• Gunstige ligging ten opzichte van uitvalswegen;

KOOPOPTIES;
• De vraagprijs in huidige staat is gesteld op € 1.200.000,- k.k. en Casco afgebouwd (excl keuken, sanitair en vloer/wand afwerking) is de vraagprijs gesteld op € 1.700.000,- k.k.
• Indien de koop inclusief casco afbouw is zal er gelijktijdig met het tekenen van de koopovereenkomst een aannemingsovereenkomst met de betrokken aannemer (Bouwcore) worden getekend. De afspraken over de indeling en afwerking worden tussen de aannemer en koper onderling afgestemd. De basis indeling zoals weergegeven in de verkoopdocumentatie is inbegrepen in de koopsom. Persoonlijke meerwerkopties kunnen (mits constructief mogelijk) tegen bijbetaling worden verwerkt. Vraag de verkopend makelaar naar de mogelijkheden, Voor dit object is Bouwgarant aangevraagd;

VERKOOPCONDITIES:
• Oplevering: in overleg, kan op korte termijn,
• Oplevering op korte termijn mogelijk,
• NVM koopovereenkomst model 2023,
• Niet zelf bewoond clausule van toepassing,
• Verkoopvoorwaarden en privacyverklaring van ons kantoor van toepassing,
• Oudersdomsclausule, "as is where is" clausule wordt opgenomen in de koopovereenkomst,
• Betreft een renovatie project welke niet de eigenschappen bezit om direct als woning te gebruiken,
• De ingevulde kenmerken zijn gebaseerd op de afwerking conform vergunning bouwtekening, maar nog naar eigen wensen aan te passen

Interesse in dit huis? Schakel direct uw eigen NVM-aankoopmakelaar in.

Basiskenmerken

Overdracht

  • Status Beschikbaar
  • Vraagprijs € 1.200.000 k.k.
  • Aanvaarding In overleg

Bouwvorm & onderhoud

  • Soort object Halfvrijstaande woning
  • Soort woning Woonboerderij
  • Bouwjaar 1900
  • Soort bouw Woonhuis
  • Ligging In bosrijke omgeving

Oppervlakte & inhoud

  • Gebruiksoppervlakte 278 m2
  • Perceeloppervlakte 846 m2
  • Inhoud 840 m3
  • Aantal kamers 6
  • Aantal slaapkamers 5
  • Aantal badkamers 3
  • Badkamervoorzieningen Ligbad, douche, wastafel, ligbad, douche, wastafel, ligbad, douche, wastafel
  • Aantal woonlagen 2 woonlagen

Energie & installatie

  • Isolatie Volledig geïsoleerd

Parkeergelegenheid

  • Parkeerfaciliteiten Op eigen terrein
  • Garage Geen garage

Overig

  • Onderhoud binnen Slecht
  • Onderhoud buiten Matig
  • Bijzonderheden Kluswoning
  • Permanente bewoning Ja
  • Huidig gebruik Woonruimte
  • Huidige bestemming Woonruimte

Buitenruimte

  • Hoofdtuin Zijtuin
  • Oppervlakte hoofdtuin 200 m2
  • Ligging hoofdtuin Noordwest
  • Kwaliteit tuin Aan te leggen

Kadastrale gegevens

  • Gemeente Rijswijk
  • Sectie G
  • Eigendom Volle eigendom
  • Perceelnummer 7380
  • Perceeloppervlakte 846
Meer kenmerken

Statistieken

Burgerlijke staat

Gehuwd
Ongehuwd
  • Gehuwd
  • Ongehuwd

Leeftijd in gemeente

0 - 15 jaar
15 - 25 jaar
25-45 jaar
45 - 65 jaar
65+ jaar
  • 0 - 15 jaar
  • 15 - 25 jaar
  • 25 - 45 jaar
  • 45 - 65 jaar
  • 65+ jaar

Leeftijd buurtbewoners

0 - 15 jaar
15 - 25 jaar
25-45 jaar
45 - 65 jaar
65+ jaar
  • 0 - 15 jaar
  • 15 - 25 jaar
  • 25 - 45 jaar
  • 45 - 65 jaar
  • 65+ jaar

Geïnteresseerd

Laat van je horen
Dit veld is bedoeld voor validatiedoeleinden en moet niet worden gewijzigd.
Ik ontvang graag de:
Privacy & Cookies(Vereist)