Verzorgde uitgebouwde 5-kamerwoning gelegen in de geliefde wijk "De Binnentuinen"

Beschikbaar

Ruim, zonnig wonen met karakter in De Binnentuinen

In de geliefde wijk De Binnentuinen vind je deze verzorgde uitgebouwde 5 kamerwoning met een heerlijke achtertuin op het zuiden. Gebouwd in de karakteristieke Berlage-stijl, de gezellige…

Den Haag Meierijlaan 49 € 685.000 k.k.

Bereken je lasten voor deze woning:

Babette van den Bosch

360 foto

Omschrijving

Ruim, zonnig wonen met karakter in De Binnentuinen In de geliefde wijk De Binnentuinen vind je deze verzorgde uitgebouwde 5 kamerwoning met een heerlijke achtertuin op het zuiden. Gebouwd in de karakteristieke Berlage-stijl, de gezellige jaren ’30 uitstraling die deze buurt zo bijzonder maakt. Je woont hier rustig en groen,…

Ruim, zonnig wonen met karakter in De Binnentuinen

In de geliefde wijk De Binnentuinen vind je deze verzorgde uitgebouwde 5 kamerwoning met een heerlijke achtertuin op het zuiden. Gebouwd in de karakteristieke Berlage-stijl, de gezellige jaren ’30 uitstraling die deze buurt zo bijzonder maakt.

Je woont hier rustig en groen, terwijl alles binnen handbereik ligt. Scholen, winkels, speeltuintjes en openbaar vervoer zijn op loopafstand. En of je nu richting het strand, het centrum van Den Haag of Delft wilt, met de fiets ben je er binnen twintig minuten.

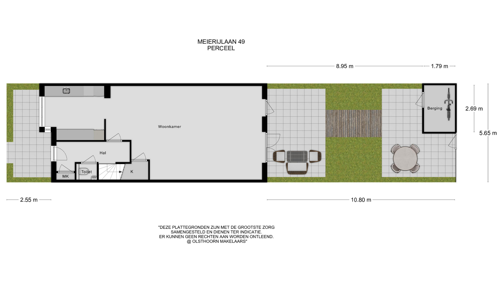
INDELING
Begane grond
Via de verzorgde voortuin stap je binnen in de hal met meterkast, modern toilet met fontein en trap naar boven. De uitgebouwde woonkamer is licht en sfeervol met grote ramen en door de openslaande deuren stap je zo de zonnige achtertuin in. De halfopen keuken aan de voorzijde is ruim opgezet en heeft een gezellige erker. De keuken is uitgerust met een grote apothekerskast en Siemens inbouwapparatuur zoals: een keramische kookplaat, oven, magnetron, vaatwasser en koel-vriescombinatie.

Eerste verdieping
Op deze verdieping vind je drie ruime slaapkamers, één aan de voorkant over de volle breedte en twee aan de achterkant. De badkamer is netjes en compleet met een douche, ligbad, wastafelmeubel en tweede toilet.

Tweede verdieping
De bovenste verdieping is verrassend ruim dankzij dakkapellen aan beide zijden, waardoor er veel licht binnenvalt en de ruimte multifunctioneel te gebruiken is. Langs beide kanten bevinden zich knieschotten voor extra bergruimte. Daarnaast vind je hier ook de aansluiting voor de wasmachine en droger en de opstelplaats voor de mechanische ventilatie. De open indeling maakt het eenvoudig om hier bijvoorbeeld een extra slaapkamer, werkplek of hobbyruimte te creëren.

Buiten
De tuin is een plek om echt van te genieten. Dankzij de ligging op het zuiden schijnt de zon hier van ’s ochtends vroeg tot in de avond. Achterin de tuin staat een ruime berging met elektra en een handige achterom.
Je beschikt bovendien over een eigen parkeerplaats op een afgesloten terrein. De voortuin maakt het geheel compleet en geeft de woning een verzorgde, uitnodigende uitstraling.

KENMERKEN
• Bouwjaar 2009
• Woonoppervlakte 158 m² (NVM Meetinstructie)
• Perceeloppervlakte 102 m²
• Energielabel A
• 5 kamers (4 slaapkamers)
• 2e verdieping voorzien van 2 dakkapellen
• Zonnige achtertuin gelegen op het zuiden
• Eigen parkeerplaats op afgesloten terrein (VvE-bijdrage € 215,00 per jaar.)
• Gasloos, aangesloten op stadsverwarming
• Erfpachtcanon is eeuwigdurend afgekocht
• Oplevering in overleg

Ben je op zoek naar een lichte, ruime woning met een zonnige tuin, volop mogelijkheden en een fijne ligging in een kindvriendelijke wijk? Neem dan snel contact op met ons kantoor. Wij laten de woning met veel plezier aan jou zien!

Interesse in dit huis? Schakel direct je eigen NVM-aankoopmakelaar in!

Basiskenmerken

Overdracht

  • Status Beschikbaar
  • Vraagprijs € 685.000 k.k.
  • Aanvaarding In overleg

Bouwvorm & onderhoud

  • Soort object Tussenwoning
  • Soort woning Herenhuis
  • Bouwjaar 2009
  • Soort bouw Woonhuis
  • Ligging Aan rustige weg, in woonwijk

Oppervlakte & inhoud

  • Gebruiksoppervlakte 158 m2
  • Perceeloppervlakte 102 m2
  • Inhoud 591 m3
  • Aantal kamers 5
  • Aantal slaapkamers 4
  • Aantal badkamers 1
  • Badkamervoorzieningen Ligbad, toilet, douche, wastafelmeubel
  • Aantal woonlagen 3 woonlagen
  • Externe bergruimte 5 m2

Energie & installatie

  • Energielabel A
  • Isolatie Dakisolatie, muurisolatie, vloerisolatie, dubbel glas, volledig geisoleerd
  • Verwarming Stadsverwarming
  • Warm water Centrale voorziening, stadsverwarming
  • Energie einddatum 2030-11-16

Bergruimte

  • Schuur / berging Vrijstaand hout
  • Voorzieningen Voorzien van elektra

Parkeergelegenheid

  • Parkeerfaciliteiten Openbaar parkeren, op afgesloten terrein
  • Garage Geen garage

Dak

  • Soort dak Samengesteld dak

Overig

  • Onderhoud binnen Goed
  • Onderhoud buiten Goed
  • Bijzonderheden Gedeeltelijk gestoffeerd
  • Permanente bewoning Ja
  • Huidig gebruik Woonruimte
  • Huidige bestemming Woonruimte

Voorzieningen

  • Voorzieningen Mechanische ventilatie, tv kabel, glasvezel kabel, natuurlijke ventilatie

Buitenruimte

  • Hoofdtuin Achtertuin
  • Oppervlakte hoofdtuin 61 m2
  • Ligging hoofdtuin Zuid
  • Kwaliteit tuin Verzorgd

Kadastrale gegevens

  • Gemeente 's-gravenhage
  • Sectie Ax
  • Eigendom Eigendom belast met erfpacht
  • Perceelnummer 86451
  • Index 19
  • Perceeloppervlakte 102
Meer kenmerken

Plattegronden

Statistieken

Burgerlijke staat

Gehuwd
Ongehuwd
Gescheiden
Verweduwd
  • Gehuwd
  • Ongehuwd
  • Gescheiden
  • Verweduwd

Leeftijd in gemeente

0 - 15 jaar
15 - 25 jaar
25-45 jaar
45 - 65 jaar
65+ jaar
  • 0 - 15 jaar
  • 15 - 25 jaar
  • 25 - 45 jaar
  • 45 - 65 jaar
  • 65+ jaar

Leeftijd buurtbewoners

0 - 15 jaar
15 - 25 jaar
25-45 jaar
45 - 65 jaar
65+ jaar
  • 0 - 15 jaar
  • 15 - 25 jaar
  • 25 - 45 jaar
  • 45 - 65 jaar
  • 65+ jaar

Geïnteresseerd

Laat van je horen
Ik ontvang graag de:
Privacy & Cookies(Vereist)
Dit veld is bedoeld voor validatiedoeleinden en moet niet worden gewijzigd.